- 01352 700070
- mold@reidandroberts.com
- Mon - Fri: 9:00 - 17:30
Reid & Roberts are delighted to present this truly impressive and beautifully presented period home, offering an exceptional blend of timeless character, generous living accommodation, and modern comforts. From the moment you arrive, the property makes a striking impression, approached via a wrought iron gate and an attractive pathway that sets the tone for what lies within.
Internally, the home is rich in original features, including impressive high ceilings, decorative detailing, and original fireplaces, all of which enhance the sense of space and elegance throughout. The accommodation is both generous and versatile, with two well-proportioned reception rooms ideal for both relaxed family living and entertaining, complemented by a stylish and well-equipped kitchen that has been thoughtfully designed for modern lifestyles.
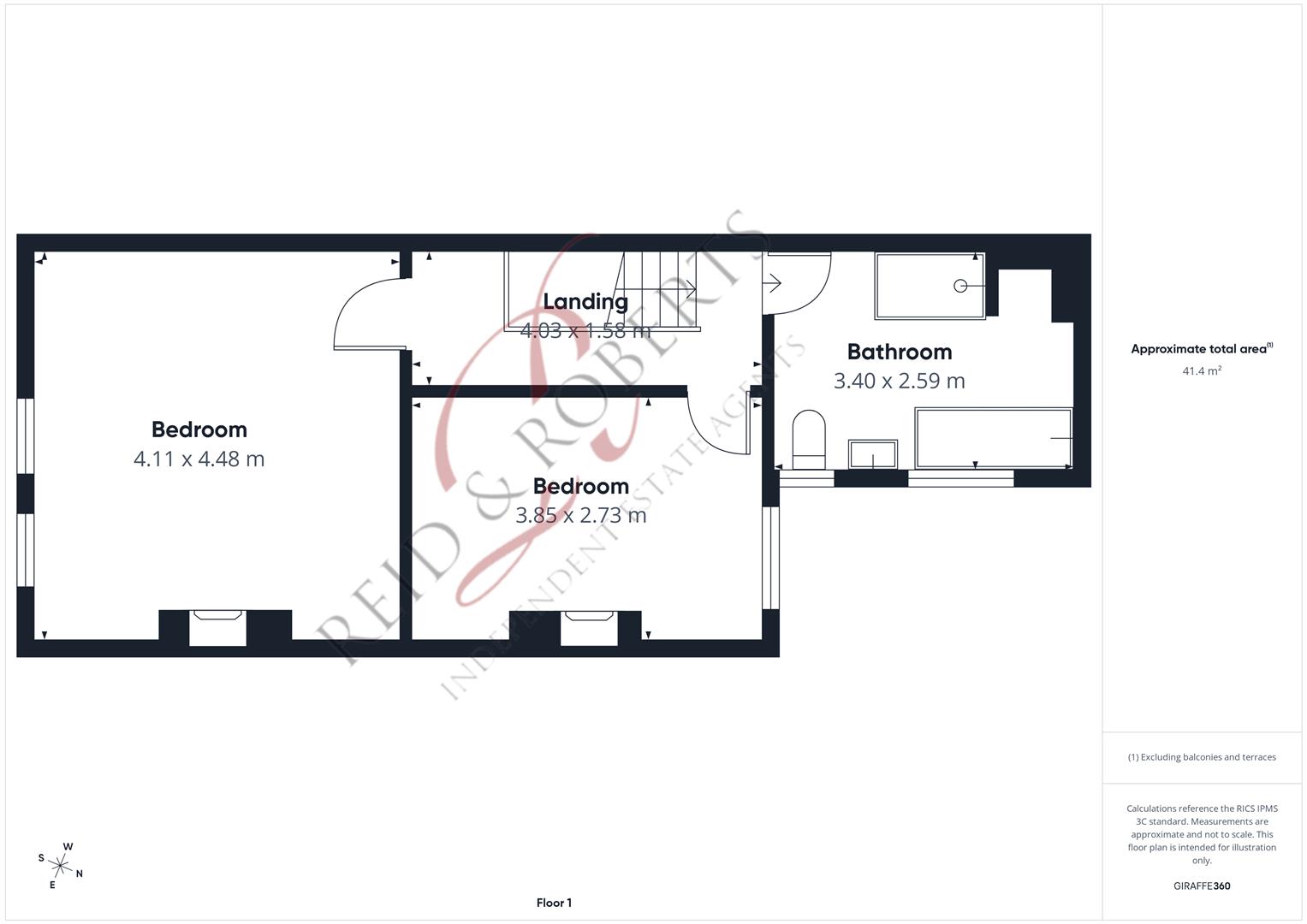
To the first floor are two excellent-sized double bedrooms, each continuing the period charm, alongside a stunning and unusually spacious four-piece family bathroom that adds a touch of luxury. Externally, the property benefits from a low-maintenance outdoor space with the added advantage of parking accessed via a rear lane and useful additional storage.
Perfectly positioned within walking distance of Mold town Centre, the property enjoys easy access to a wide range of shops, cafés, restaurants, and local amenities, making it ideal for those seeking convenience without compromising on character or space. This is a rare opportunity to acquire a substantial period home in a sought-after location, early viewing is highly recommended.
The property is approached via a wrought iron gate with concrete steps leading to a matching pathway which extends to the front entrance.
A UPVC double-glazed front door with frosted panels opening into an inner porch. This area features exposed brickwork, high ceilings, and decorative tiled flooring. A further wooden door with decorative inset leads into a spacious entrance hallway with high ceilings, picture rail, dado rail, archways, and staircase rising to the first floor. Finished with high-quality stone tiled flooring, radiator, under-stairs storage with shelving, and meters discreetly housed.
Situated to the front of the property, the lounge is a cosy and inviting space that has been recently redecorated. Features include high ceilings, UPVC double-glazed windows with top openers, log-effect burner, laminate flooring, TV aerial point, central ceiling light, and double panel radiator.
A separate dining room enjoys high ceilings and continues the stone tiled flooring from the hallway. The room benefits from an original fireplace with tiled inset, hearth and decorative mantel, UPVC double-glazed window to the rear elevation, central ceiling light point, and double panel radiator.
The kitchen is a generous size and fitted with a range of wall and base units with complementary wood-effect work surfaces. Integrated appliances include an electric oven, four-ring induction hob, extractor hood, slimline dishwasher, and one-and-a-half bowl stainless steel sink with mixer tap. There is space for an American-style fridge freezer, a vertical modern radiator, recessed spotlighting, breakfast bar with granite worktop, and an additional bar area ideal for entertaining. UPVC double-glazed windows to the side elevation and a frosted UPVC door provide access to the rear garden.
Stairs rise to the first floor accommodation to a split-level landing providing access to two bedrooms and the family bathroom.
The family bathroom is an impressive size and fitted with a four-piece suite comprising a curved panelled bath with waterfall mixer tap, walk-in double shower with rainfall and handheld attachments, WC, and vanity wash basin with storage. Additional features include two frosted UPVC double-glazed windows, towel radiator, LVT flooring, part-tiled walls, high ceilings with recessed spotlights, extractor fan, cupboard housing the newly installed combination boiler, and plumbing for a washing machine.
A particularly spacious double bedroom featuring high ceilings, two UPVC double-glazed windows to the front elevation with top openers, decorative original fireplace, loft access, ceiling light point, and double panel radiator.
A further generous double bedroom with high ceilings, UPVC double-glazed window to the rear elevation, original fireplace, and ceiling light point.
Externally, the property offers a low-maintenance concrete paved area providing outdoor seating and parking, accessed via an unadopted rear lane. There is also an outhouse providing useful additional storage. The outdoor space is southeast-facing, creating a pleasant sunny area.
Strictly by prior appointment through Reid & Roberts Estate Agents. Telephone Mold office on 01352 700070. Do you have a house to sell? Ask a member of staff for a FREE VALUATION without obligation.
Please call 01352 700070 and our staff will be happy to help with any advice you may need. We can arrange for Lauren Birch or Holly Peers to visit your property to give you an up to date market valuation free of charge with no obligation.
Call a member of staff who can discuss your offer and pass it onto our client. Please note, we will want to qualify your offer for our client
Reid & Roberts Estate Agents can offer you a full range of Mortgage Products and save you the time and inconvenience of trying to get the most competitive deal yourself. We deal with all major Banks and Building Societies and can look for the most competitive rates around. Telephone Mold office on 01352 700070
YOUR HOME IS AT RISK IF YOU DO NOT KEEP UP REPAYMENTS ON A MORTGAGE OR OTHER LOANS SECURED ON IT.
MONDAY - FRIDAY 9.00am - 5.30pm
SATURDAY 9.00am - 4.00pm
PLEASE NOTE WE OFFER ACCOMPANIED VIEWINGS 7 DAYS A WEEK
Both vendors and purchasers are asked to produce identification documentation and we would ask for your co-operation in order that there will be no delay in agreeing the sale.
The Agents have not tested any included equipment (gas, electrical or otherwise), or central heating systems mentioned in these particulars, and purchasers are advised to satisfy themselves as to their working order and condition prior to any legal commitment.
These particulars, whilst believed to be accurate, are for guidance only and do not constitute any part of an offer or contract - Intending purchasers or tenants should not rely on them as statements or representations of fact, but must satisfy themselves by inspection or otherwise as to their accuracy. No person in the employment of Reid and Roberts has the authority to make or give any representations or warranty in relation to the property.
Owning a home is a keystone of wealth… both financial affluence and emotional security.
Suze Orman