- 01352 700070
- mold@reidandroberts.com
- Mon - Fri: 9:00 - 17:30
Reid & Roberts Estate and Letting Agents are delighted to offer For Let this well presented, Two Bedroom Mid Terrace Property, situated in a popular residential area of Johnstown.
Located in the heart of Johnstown, the property benefits from access to a range of local amenities including shops, schools, and public transport links. Excellent road connections provide access to Wrexham, Chester, and the wider motorway network, making it ideal for commuting.
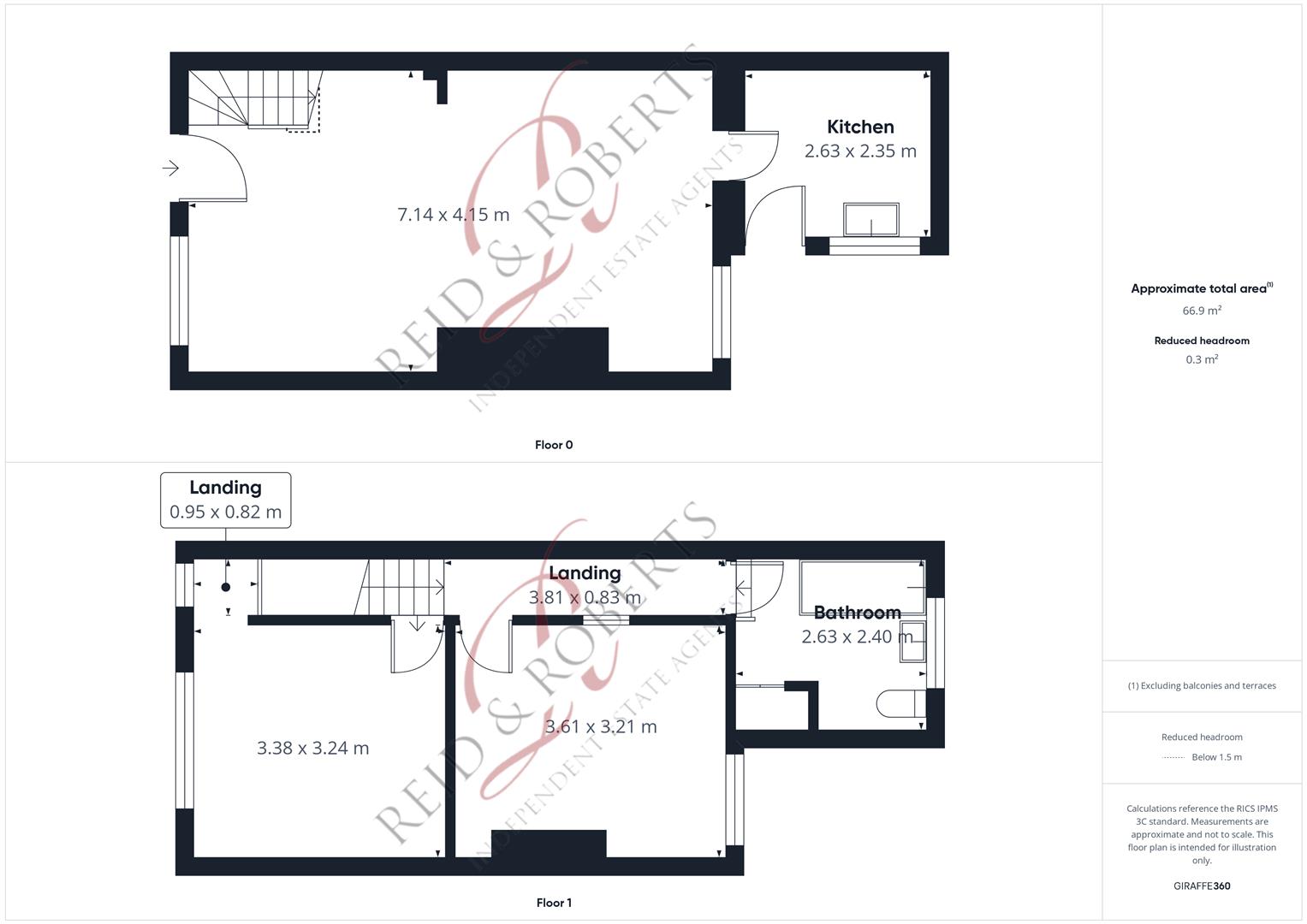
The accommodation in brief comprises: Lounge/Diner with dual aspect windows and ample living space, Fitted Kitchen with access to the rear garden, and to the First Floor: Two Bedrooms and a Family Bathroom. Externally, the property offers a low-maintenance rear garden with artificial lawn area, gravelled borders, and a shared access pathway for bins and services.
Affordability:
A combined minimum household income of £24,000 pa is required to apply for this property in line with our referencing agency’s affordability guidelines.
To arrange a viewing:
Due to high demand, viewings are by appointment only and must be requested via email. Unfortunately, we are unable to arrange appointments over the phone.
Holding Deposit:
A holding deposit of £184 will be required to secure the property, payable following a successful viewing.
Owning a home is a keystone of wealth… both financial affluence and emotional security.
Suze Orman